Beschrijving
ANNULERING OPEN HUIS!
Het ingeplande open huis zaterdag 1 april 2023 tussen 11 en 15 uur bij Beek Luther Kingstraat 24 gaat niet door omdat de woning inmiddels is verkocht! We zijn ontzettend blij dat deze woning zo snel een nieuwe eigenaar heeft gevonden.
Als je op zoek bent naar een soortgelijke woning, dan nodig ik je van harte uit om je als woningzoekende in te schrijven in mijn zoekersbestand. Via de website nieuw.info kun je je gegevens achterlaten en blijf je op de hoogte van nieuwe woningen die beschikbaar komen in mijn aanbod.
#OpenHuizenDag #Beek #LutherKingstraat24 #Woningverkoop #WoningenTeKoop #Droomhuis #Makelaar #HuisTeKoop #Huizenjacht #OpenHuis #VBO #PaulHorstenMakelaardij #Taxatie #ZuidLimburg
In een rustige en gewilde woonomgeving gelegen 2 onder 1 kap woonhuis met riant aangebouwd gedeelte, mooi aangelegde tuin en garage. Living met moderne keuken, separate bijkeuken en separate speel-/hobby-/slaapkamer. Verdieping: Overloop, 3 slaapkamers, moderne badkamer met ligbad en tweede toilet. Via vaste trap naar ruime slaapzolder met dakkapel. Veel leefruimte! Oprit en garage. Perceel ca. 232 m².
Indeling
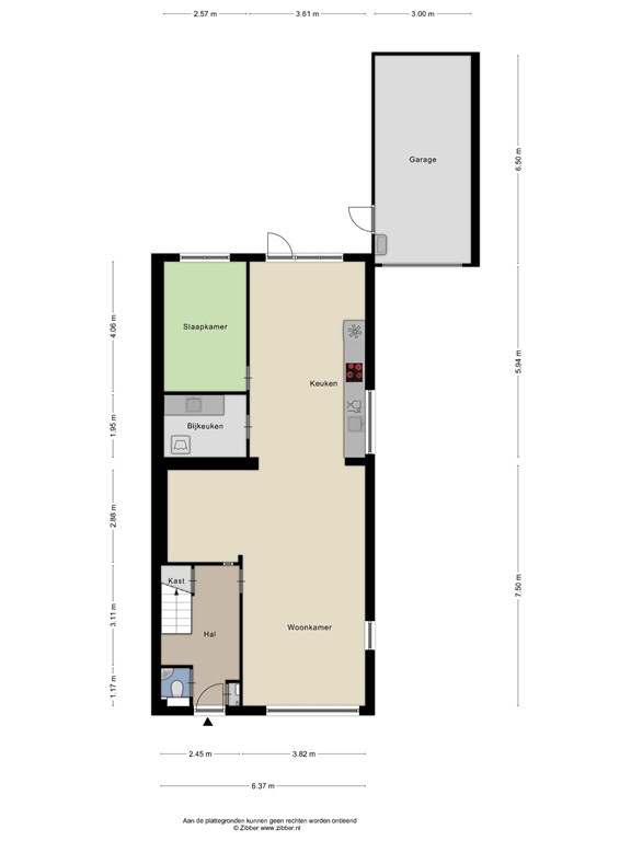
Entree, hal, toiletruimte, meterkast, trapkast. Royale living met open keuken (totaal ca. 58 m2), separate bijkeuken (ca. 5 m2) en separate speel-/hobby-/slaapkamer (ca. 10 m2). Keuken is voorzien van een moderne keukeninrichting uitgerust met keramische kookplaat, oven, wasemkap, vaatwasser en spoelunit. Tuin met terras. Oprit. Garage.
Eerste verdieping
Overloop; 3 slaapkamers, elke slaapkamer is uitgerust met een vaste wastafel. De badkamer is voorzien van een ligbad / douche combinatie, tweede toilet en moderne vaste wastafel in meubel. Via vaste trap naar:
Tweede verdieping
Slaapzolder met dakkapel. Ruimte voor CV GAS installatie en zonneboiler. Kastberging.
Tuin
Sfeervolle terrastuin ca. 40 m2.
Bijzonderheden
* Moderne afwerking, woonhuis in een gewilde woonomgeving in Beek;
* Riant aangebouwd!
* Vaste trap naar slaapzolder met dakkapel.
* Kozijnen: Houten kozijnen en dubbele beglazing.
* CV installatie: CV ketel, merk: Nefit. Bouwjaar: 2017. Huur: ca 37 euro per maand.
* Warmwatervoorziening: Zonneboiler. Merk: Agpo.
* Ruime garage, oprit.
Plattegronden
366190_2D_Begane_grond_Luther_Kingstraat_24_Beek_01.jpg
366190_2D_Eerste_verdieping_Luther_Kingstraat_24_Beek_02.jpg
366190_2D_Tweede_verdieping_Luther_Kingstraat_24_Beek_03.jpg
366190_3D_Begane_grond_Luther_Kingstraat_24_Beek_01.png
366190_3D_Eerste_verdieping_Luther_Kingstraat_24_Beek_02.png
366190_3D_Tweede_verdieping_Luther_Kingstraat_24_Beek_03.png