Beschrijving
Prachtige geschakelde woning met een inpandige berging. Deze woning is ideaal voor levensloopbestendig wonen, met een master bedroom en badkamer op de begane grond. Op de verdieping bevinden zich een tweede badkamer en slaapkamer. Ruime terrastuin met terrasoverkapping.
Indeling
Begane grond: Entree, hal met toiletruimte, meterkast. Links: de inpandige berging met wasmachine aansluiting en aansluiting vloerverwarming. Rechts: Open keuken, voorzien van een mooie keukenopstand uitgerust met spoelunit, koelkast, oven, inductie kookplaat en vaatwasser. Ruime living, met zit- en eethoek, via schuifpui te bereiken terrastuin met ruime terrasoverkapping. Via living, portaal/gang naar master bedroom en badkamer 1. De badkamer is uitgerust met een ligbad, separate douche, tweede toilet en vaste wastafel. Achterzijde: een berging. Voorzijde: Oprit.
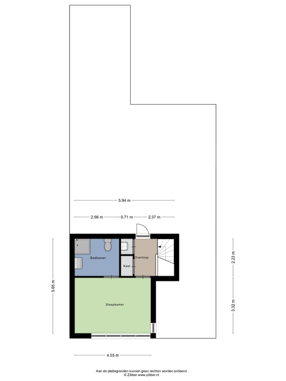
Eerste verdieping
Overloop, CV berging, inbouwkast, slaapkamer 2 en badkamer 2. Deze badkamer is uitgevoerd met een douche, vaste wastafel en derde toilet.
Tuin
Tuin met terras/terrasoverkapping.
Berging.
Bijzonderheden
* Mooie afwerking, met vloerverwarming (woonkamer, keuken, hal, toilet, portaal en badkamer);
* 2 badkamers; 2 slaapkamers,
* Levensloopbestendig wonen in een gewilde woonomgeving;
* inpandige berging en oprit;
* Kozijnen: Houten kozijnen en dubbele beglazing; aluminium schuifpui.
* CV ketel, merk: Bosch 30 HR COMBI I. Bouwjaar: 2009. Koop.
Plattegronden
383745_2D_Begane_Grond_Neerbeekerhof_8_Beek_01.jpg
383745_2D_Eerste_Verdiaping_Neerbeekerhof_8_Beek_02.jpg
383745_3D_Begane_Grond_Neerbeekerhof_8_Beek_01.png
383745_3D_Eerste_Verdiaping_Neerbeekerhof_8_Beek_02.png