Beschrijving
Geschakelde twee-onder-een-kap woning uit 1974, gelegen in een gewilde woonomgeving in Stein. De woning is gesitueerd op een perceel van 262 m² en beschikt over een ruime, zonnige achtertuin gericht op het zuiden. De begane grond is voorzien van een ruime woonkamer, gesloten keuken met nette keukenopstelling voorzien van een granieten aanrechtblad. Aan de achterzijde is de woning uitgebouwd met een aluminium serre met schuifpui. Op de verdieping bevinden zich 3 slaapkamers en een mooie badkamer met douche en tweede toilet. Via een vlizotrap is de zolderverdieping bereikbaar. Energielabel C!
Indeling
Begane grond: Entree, hal, toiletruimte, meterkast. Woonkamer met een zit- en eethoek, gesloten keuken voorzien van onder meer oven, koelkast, 4 pits gas kookplaat en wasemkap. Aan de achterzijde is de woning uitgebouwd met een aluminium serre met schuifpui. Ruime en mooi aangelegde tuin, gericht op het zuiden. Garage. Oprit.
Eerste verdieping
Overloop, 3 slaapkamers, mooie badkamer met douche, tweede toilet, vaste wastafel en design radiator.
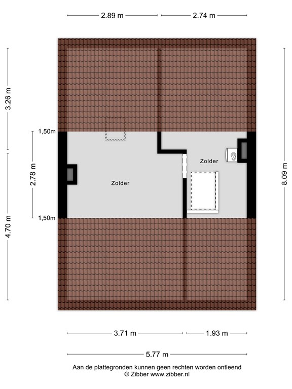
Tweede verdieping
Via vlizo trap te bereiken bergzolder met opstelling CV installatie (gehuurd/2021).
Bijzonderheden
* Gewilde woonomgeving in Stein;
* Verwarming en warmwatervoorziening: CV ketel Gas; gehuurd; huur euro XXX per maand, bouwjaar: 2021;
* Kunststoffen en houten kozijnen met grotendeels dubbele beglazing, woonkamer voorzijde tripple glas. De kozijnen achtergevel begane grond zijn houten kozijnen met dubbele en enkele beglazing, aangebouwd met aluminium serre met dubbele beglazing, schuifpui.
* Ruime voor- en achtertuin. Oprit. Garage.
* Eerste verdieping rolluiken.
Plattegronden
181694116_1622078_gruyt_begane_grond_first_design_20260129_d71c63.jpg
181694116_1622078_gruyt_eerste_verdiepi_first_design_20260129_75775f.jpg
181694116_1622078_gruyt_zolder_first_design_20260129_163a39.jpg
181694116-295504561-se-148089826-1769652153181.png
181694116-295537516-se-148089826-1769652153181.png
181694116-295538806-se-148089826-1769652153181.png