Beschrijving

In Urmond gelegen geschakelde 2 onder 1 kap woning met 3 slaapkamers.  Het woonhuis is gebouwd in ca. 1969. Het huis is gelegen op een perceel groot 228 m2. De woning is voorzien van een ruim aangebouwd gedeelte over gehele breedte van de woning. Via schuifpui woonkamer naar mooie tuin met terras. Ruime oprit. Garage met toegang tot een aangebouwde berging.

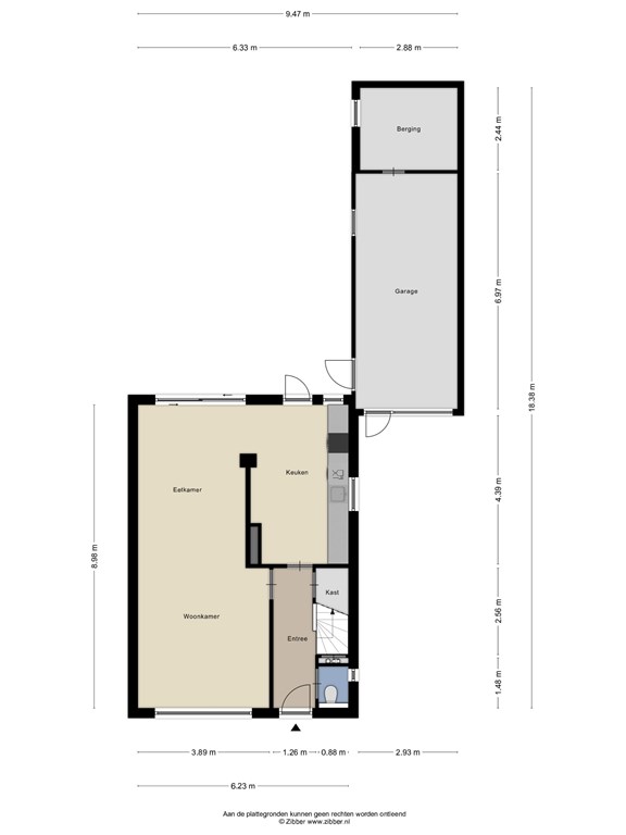
Indeling

Entree, hal, meterkast, kast onder trap, garderobe. Royale living voorzien van tegelvloer; een aangebouwd gedeelte over gehele breedte van de woning ter vergroting van de woonkamer en keuken. Keuken is uitgerust met een ruime keukenopstand voorzien van onder meer een 4 pits gaskookplaat, wasemkap, oven, koelkast en spoelunit. Via schuifpui woonkamer / deur keuken naar tuin met terras. Ruime oprit. Ruime garage met toegang tot de aangebouwde berging.

Eerste verdieping

Overloop; 3 slaapkamers; badkamer met douche, vaste wastafel en tweede toilet. Via vliso trap naar:

Tweede verdieping

Bergzolder en technische ruimte met de CV combi gas/gehuurd/bouwjaar ca. 2021

Tuin

Mooie tuin met terras!

Bijzonderheden

* Woonhuis in een gewilde woonomgeving in Urmond;
* Verwarming en warmwatervoorziening: CV ketel Gas; gehuurd; REMEHA, bouwjaar: 2021; 
* Begane grond: Keuken en achterzijde woonkamer: houten kozijnen met dubbele beglazing, grote raam woonkamer voorzijde is een kunststoffen kozijn met HR++ beglazing. Hal: houten deur / kozijn met glas-in-lood glas voorzien van een voorzetraam, toilet: klein houten kozijn met enkele beglazing. Verdieping: Slaapkamers kunststoffen kozijnen met HR++ beglazing, hal en badkamer: houten kozijn voorzien van dubbele beglazing. Deels rolluiken.
* Aangebouwd over gehele breedte van de woning, ter vergroting van de keuken en woonkamer;
* Tuin met terras;
* Ruime garage met extra aangebouwde stenen berging. Oprit.

Kenmerken