Beschrijving
Op toplocatie gelegen deze prestigieuze woning uit 1933, met een opvallende en statige architectuur. Vrijstaande woning met een karakteristieke Jaren 30 sfeer: een prachtige hal met indrukwekkende trappartij en glas-in-looddetails, een woonkamer en suite, erker aan voorzijde en aan de achterzijde een brede glaspartij met direct zicht op de diepe achtertuin. Een multifunctionele riante aanbouw, inpandige garage en een extra berging in de tuin. Op de verdieping bevinden zich 4 slaapkamers en een badkamer. Mogelijkheid voor het realiseren van extra kamers op zowel de verdieping als de ruime zolderverdieping; een unieke kans voor wie droomt om deze markante villa geheel naar eigen wens te moderniseren. De vrijstaande woning is gelegen op een perceel van 799 m², op een gewilde locatie in Beek; met alle voorzieningen korte afstand, directe nabijheid van uitvalswegen naar Maastricht - Sittard - Heerlen.
Indeling
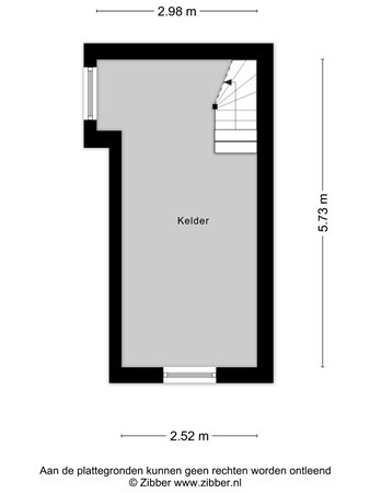
Kelder: Provisie-/bergruimte.
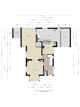
Begane grond: Entree: via een sfeervolle hal met indrukwekkende trappartij, glas-in-lood details! De woonkamer is een klassieke "en suite" met aan de voorzijde een sfeervolle erker, die zorgt voor een prachtige lichtinval. Aan de achterzijde van de woonkamer bevindt zich een brede glaspartij, waardoor u optimaal contact heeft met de diepe achtertuin. Gesloten keuken, de begane grond is verrassend ruim dankzij de uitbouw. Hier vindt u een multifunctionele ruimte die perfect dienst kan doen als hobbykamer, werkruimte aan huis of tuinkamer. Daarnaast een inpandige garage. In de tuin een extra ruime berging. Ruime oprit, voldoende ruimte voor parkeren op eigen terrein. De voortuin en de royale achtertuin zijn prachtig aangelegd en biedt volop privacy, rust en zonlicht.
Eerste verdieping
De eerste verdieping beschikt over vier slaapkamers en een badkamer. De badkamer is uitgerust met een separate douche, ligbad, tweede toilet, bidet en dubbele vaste wastafel. Een van de slaapkamers geeft toegang tot een balkon. Bijzonder is de royale extra kamer op deze verdieping; met een kleine aanpassing is hier eenvoudig een vijfde slaapkamer of werkkamer te realiseren.
Tweede verdieping
Via een vaste trap bereikt u de tweede verdieping. Deze riante zolderruimte is momenteel een open ruimte, in gebruik als berging, meer dan voldoende plek voor het creëren van nog eens twee extra slaapkamers of bijvoorbeeld een spectaculaire master-bedroom met extra badkamer! Volop mogelijkheden!
Balkon
Er is een balkon, bereikbaar via slaapkamer.
Tuin
Er is een voortuin en een grote diepe achtertuin, prachtig aangelegd en biedt volop privacy, rust en zonlicht.
Bijzonderheden
* Bouwjaar: 1933 (authentieke elementen bewaard gebleven);
* Perceeloppervlakte: 799 m²;
* 4 slaapkamers op de 1e verdieping, extra slaapkamer mogelijk op verdieping en zeker 2 op de riante zolderverdieping;
* Multifunctionele ruimte begane grond, hobby-/werkruimte;
* Parkeren: Eigen garage en een ruime oprit;
* De woning dient gemoderniseerd te worden, wat u de kans biedt om uw eigen woonwensen te realiseren;
* Toplocatie: Gelegen in een van de mooiste straten van Beek. Alle voorzieningen zoals winkels, scholen en gezellige horeca bevinden zich op loopafstand. Daarnaast zijn de uitvalswegen richting Maastricht, Sittard en Heerlen uitstekend bereikbaar, evenals het prachtige omliggende Limburgse heuvelland.