Beschrijving
In Moorveld bieden wij deze 2-onder-1-kapwoning aan met drie slaapkamers en een multifunctionele hobby- of werkruimte in de achtertuin. De woning beschikt over een moderne keuken en badkamer. Energielabel B. Het woonhuis is voorzien van kunststoffen kozijnen met dubbele beglazing, grotendeels rolluiken, spouwmuurisolatie en 14 zonnepanelen. De indeling is als volgt: In het souterrain bevindt zich een kelderruimte. De begane grond bestaat uit een hal met garderobe en toilet, gesloten keuken en een woonkamer met toegang tot de tuin met overdekt terras. Het aangebouwde gedeelte is ingericht met een extra zitkamer, een bijkeuken en een berging. De diepe achtertuin is aangelegd met diverse terrassen. Verdiepingen: Op de eerste verdieping bevinden zich drie slaapkamers, wasberging en de badkamer, deze is uitgerust met een ligbad-douchecombinatie, een tweede toilet en een wastafelmeubel. De tweede verdieping betreft een bergzolder die bereikbaar is via een vlizotrap.
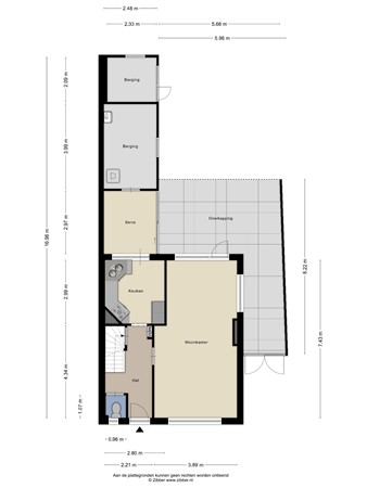
Indeling
Souterrain: Kelderruimte.
De begane grond bestaat uit een hal met garderobe en toilet, een living, een gesloten moderne keuken. De keukenopstelling beschikt over een granieten aanrechtblad, gaskookplaat met separate wokbrander, oven, koelkast en wasemkap. Aan de achterzijde is een zitkamer gesitueerd. Bijkeuken. De achtertuin is ingericht met een terras met overkapping, terras in achtertuin en separate tuinberging. Achter op het perceel staat een bijgebouwd zijnde een hobby-werkruimte!
Eerste verdieping
Op de verdieping bevinden zich drie slaapkamer. De badkamer is uitgerust met een ligbad-douchecombinatie, een tweede toilet en een wastafelmeubel. De wasmachine aansluiting bevinden zich in een aparte wasberging.
Tweede verdieping
Via vliso trap te bereiken bergzolder.
Balkon
Balkon aanwezig op verdieping.
Tuin
Mooi aangelegde voor- en achtertuin
Bijzonderheden
* Goed gelegen 2 onder 1 kap woonhuis met ruime diepe tuin;
* Multifunctionele hobby- of werkruimte in de achtertuin;
* Tuin met terrasoverkapping , separate tuinberging;
* 14 zonnepanelen en spouwmuurisolatie.
* Volledig voorzien van kunststoffen kozijnen met dubbele beglazing en deels rolluiken, houten schuifpui.
* CV ketel Gas, Eigendom, merk: Bouwjaar: 2019